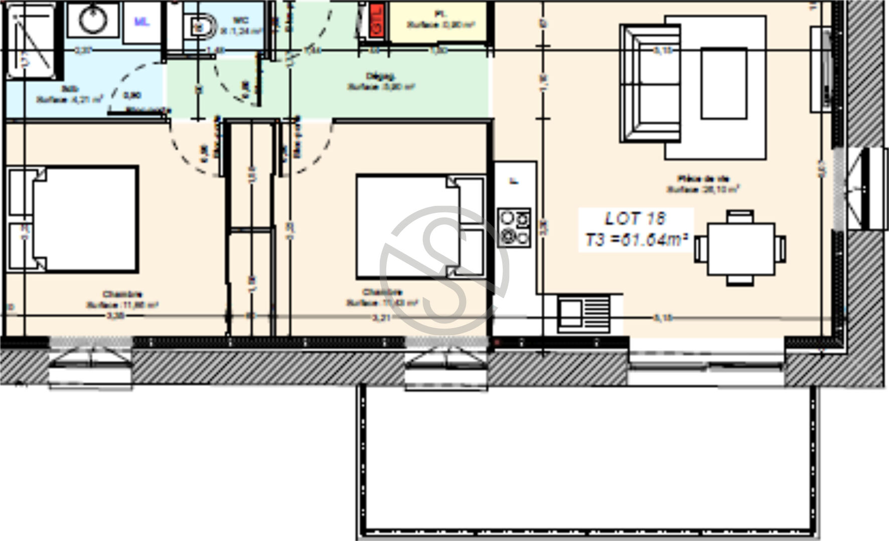
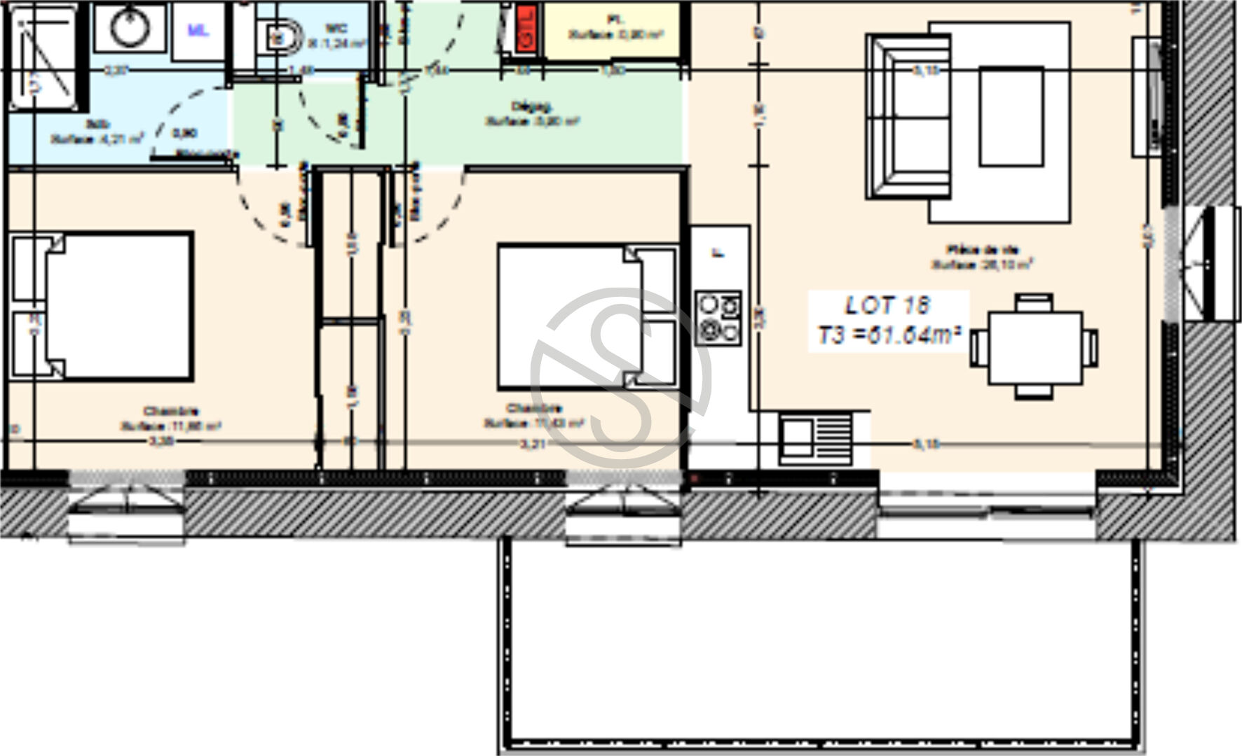
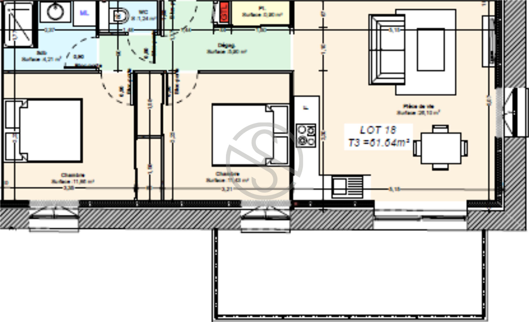
T3 de 60 m2 au 1er étage
Résidence LA SOIERIE à Moirans
Vous souhaitez acquérir et avoir le privilège d’agencer votre appartement comme vous le voulez ? C’est par ici !
Une résidence chaleureuse, sécurisée et à taille humaine.
L’appartement est livré en plateau viabilisé. Il reste l’aménagement intérieur à faire selon vos souhaits. Accompagnement complet possible sur le second oeuvre. Demandez vite des renseignements.
La copropriété comprend 18 lots conçus pour offrir confort et bien-être aux occupants. Chaque logement bénéficie d’une place de parking nominative et la possibilité d’acquérir un garage.
Ces T3 bénéficient d’une terrasse privative de 15 m2 plein SUD. Des espaces intérieurs bien pensés pour profiter pleinement de votre propriété. Une vue dégagée sur le Vercors !
FRAIS D’AQUISITION AVANTAGEUX
Baie vitrée alu et fenêtre pvc
Volets roulants électrique
Contactez Antoine pour une étude personnalisée de votre projet et pour découvrir toutes les possibilités qui s’offrent à vous.
Copropriété de 31 lots – dont 18 lots habitation. ().
Charges annuelles : 1 euros.
Antoine SAUVEGRAIN (EI) Agent Commercial – Numéro RSAC : 901364661 – VIENNE.





