A 5 MINUTES DE LA COTE SAINT ANDRE
A Saint-Siméon-de-Bressieux « LES TERRES DE SOIE »
Vous souhaitez acquérir un bien clé en main?
Une toute nouvelle opportunité s’offre à vous sur notre territoire!
Dans une copropriété premium, ce sont 22 villas qui vous sont proposées:
– du mitoyen à l’individuel.
– sur des parcelles de 181m² à 408m².
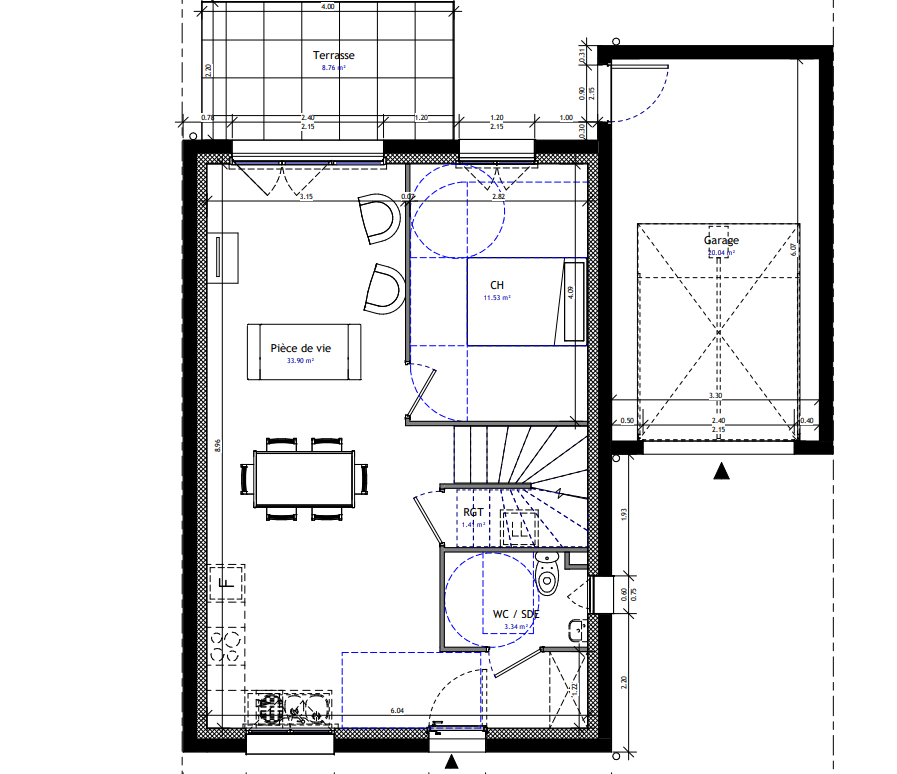
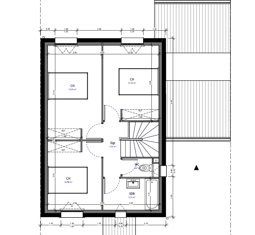
Chaque villa sur 2 niveaux est composée d’une pièce de vie ouverte, de 4 chambres dont une en rez-de-chaussée, avec salle de bains et possibilité de salle d’eau supplémentaire.
Elle possède également un garage de 20m² et une terrasse de 8.76m².
Les + : les clôtures, le gazon, la terrasse ainsi que le béton désactivé pour les extérieurs font partie du produit fini , et surtout des prestations de qualité!
FRAIS D’AQUISITION REDUITS.
DOMMAGE OUVRAGE
DECENNALE pour garantir votre tranquillité.
L’équipe STARTHOM, native du territoire à VOTRE service pour accompagner votre projet SEREINEMENT
Contactez-nous pour une étude personnalisée de votre projet et pour découvrir toutes les possibilités qui s’offrent à vous.
Copropriété de 95 lots – dont 76 lots habitation.
Karine TARRARE (EI) Agent Commercial – Numéro RSAC : 521851220 – VIENNE.


